Produkty > Zimná záhrada > Zimná záhrada – Veranda

Zimná záhrada - Veranda

Alebo nám zavolajte na 0905 205 757

Alebo nám zavolajte
na 0905 205 757

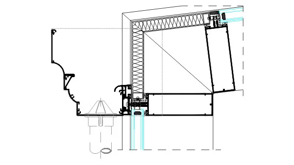
Systém, ktorý využíva základný princíp drenáže a ventilácie fasádnych systémov doplnený o profily, ktoré umožňujú realizovať rôzne riešenia pre zimné záhrady.

Systém Zimná záhrada – Veranda dopĺňajú stavebné profily a doplnkové profily pre adaptáciu “bez” a “s” prerušeným mostom, čo dovoľuje zahrnúť do konštrukcie akýkoľvek druh otvárania. Sada tesnení z EPDM materiálu, odolná voči poveternostným vplyvom, zaručuje výbornú vodotesnosť systému.

Systémová špecifikácia

Profilová hĺbka

Stĺpikový profil:

145 mm

Priečnikový profil:

50 mm

Profilová šírka

Rámový profil:

52 mm

Stĺpikový profil:

52 mm

Maximálna hmotnosť zasklenia:

450 kg

Sklon strešnej konštrukcie:

7 – 40°

Hrúbka zasklenia:

24 – 50 mm

* Pre rozmer otváravého okna 1230 x 1480 mm

Výhody systému
Zimná záhrada - Veranda

Dokumenty na stiahnutie

Máte záujem o nezáväznú cenovú ponuku? Potrebujete poradiť?

Využite naše 25-ročné skúsenosti a získajte riešenie presne pre Vás.

Alebo nás kontaktujte priamo:

Peter Danek
Tel: 0905 205 757
E-mail: brunwin@brunwin.sk