Produkty > Fasádne systémy > Fasáda Millennium

Fasáda Millennium

Alebo nám zavolajte na 0905 205 757

Alebo nám zavolajte
na 0905 205 757

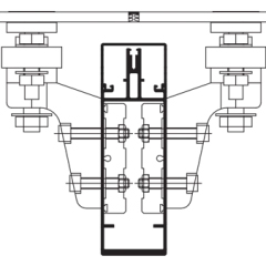
Systém ľahkej fasády, kde sa vonkajšie sklo upevňuje pomocou svoriek a spojovacích elementov: fixných elementov alebo guľových čapov.

Systém Fasáda Millennium má svorky vyrobené z nerezovej ocele. Držia guľové čapy na ktoré sa upevňuje sklo, predtým upravené vyrezaním otvoru, aby sa dané upevnenie mohlo uskutočniť. Nosná konštrukcia na ktorú sa upevňujú svorky sa skladá len z vertikálnych hliníkových profilov vysokej hrúbky a pevnosti čím sa dosahujú konštrukcie s veľkým rozpätím medzi podperami. Tento systém je doplnený o ďaľšie profily a tesnenia, ktoré dovoľujú realizáciu najrôznejších konštrukčných riešení.

Systémová špecifikácia

Profilová hĺbka

Priečnikový profil:

22,5 – 205,5 mm

Krídlový profil:

Stĺpikový profil:

145 – 210 mm

Pohľadová šírka

Priečnikový profil:

 65 mm

Krídlový profil:

Stĺpikový profil:

Maximálna hmotnosť zasklenia:

180 kg

Hrúbka zasklenia:

8 – 26 mm

Prievzdušnosť (EN 12152):

Vodotesnosť (EN 12154):

Odolnosť proti vetru (EN 13116):

Súčiniteľ prestupu tepla okna:

Súčiniteľ prestupu tepla okna:

Výhody systému Fasáda Millennium

Dokumenty na stiahnutie

Máte záujem o nezáväznú cenovú ponuku? Potrebujete poradiť?

Využite naše 25-ročné skúsenosti a získajte riešenie presne pre Vás.

Alebo nás kontaktujte priamo:

Peter Danek
Tel: 0905 205 757
E-mail: brunwin@brunwin.sk