Jednoduchý, ekonomický a univerzálny systém pántového okna, ktorý bol vyvinutý s cieľom uspokojiť požiadavky konkrétneho trhového segmentu.
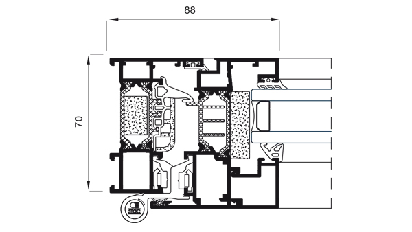
Okenný systém Cor-70 má konštrukčnú hĺbku rámu 70 mm a hodnotu tepelnej priepustnosti na ráme (Uf) len 1,2 W/m²K čím je schopný vyhovieť rôznej klimatickej záťaži a požiadavkám energetickej účinnosti.
Jednoduchosť systému Cor-70 s rovnou estetikou krídla a zasklievacej lišty ho predurčuje na použitie v modernej architektúre. Možnosť zasklenia až 55 mm, dáva priestor použitiu energeticky úsporných skiel s jednou a dvoma komorami, ktoré umožňujú vynikajúce tepelné a akustické vlastnosti systému (ochrana proti hluku až 44 dB), čo sa odzrkadľuje v energetickej úspornosti a vnútornom komforte.
* Pre rozmer otváravého okna 1230 x 1480mm