Produkty > Fasádne systémy > Fasáda Equity

Fasáda Equity

Alebo nám zavolajte na 0905 205 757

Alebo nám zavolajte
na 0905 205 757

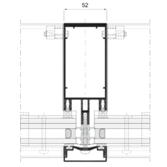
Rovnako ako na stĺpe tak aj na priečniku viditeľná vnútorná časť predstavuje len 18 mm čím sa dosiahne s pohľadu estetiky minimalistický štýl a z pohľadu funkčnosti sa uľahčí celkový vstup svetla do budovy.

Montáž systému Fasáda Equity sa uskutočňuje zarovnaním profilov čo poskytuje estetickú jednotnosť vnútri fasády. Zasklievanie sa uskutočňuje upevňovaním skla pomocou hliníkovej tlakovej krycej lišty, vertikálne aj horizontálne, spôsobom, že viditeľná vonkajšia časť je 52 mm a vnútorná len hore uvedených 18 mm.

Systémová špecifikácia

Profilová hĺbka

Priečnikový profil:

22,5 – 205,5 mm

Krídlový profil:

Stĺpikový profil:

16 – 230 mm

Pohľadová šírka

Priečnikový profil:

52 mm

Krídlový profil:

Stĺpikový profil:

52 mm

Maximálna hmotnosť zasklenia:

450 kg

Hrúbka zasklenia:

6 – 44 mm

Prievzdušnosť (EN 12152):

Trieda AE

Vodotesnosť (EN 12154):

Trieda RE1500

Odolnosť proti vetru (EN 13116):

Vhodný

Súčiniteľ prestupu tepla okna:

Uw = 1,2 W/m 2K * (pri použití dvojskla Ug = 1,0 W/m 2K)

Súčiniteľ prestupu tepla okna:

Uw = 1,0 W/m 2K * (pri použití trojskla Ug = 0,8 W/m 2K)

* Pre rozmer okna 3000 x 3000 mm

Výhody systému Fasáda Equity

Dokumenty na stiahnutie

Máte záujem o nezáväznú cenovú ponuku? Potrebujete poradiť?

Využite naše 25-ročné skúsenosti a získajte riešenie presne pre Vás.

Alebo nás kontaktujte priamo:

Peter Danek
Tel: 0905 205 757
E-mail: brunwin@brunwin.sk