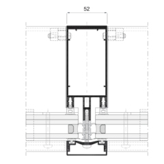
Základné sĺpikové profily fasády TP 52 sú rozmerov od 16 mm do 230 mm, od 22,5 mm do 205,5 mm pre priečniky, a rovnako ako doplnkové príslušenstvo sú kompatibilné pre všetky fasády CORTIZO. Kompletná sada týchto profilov a ich mechanických spojov dovoľuje realizáciu všetkých typov fasád (vertikálne, šikmé, s pravým uhlom 90º, polygonálne), a riešení pri zasklievaní sklami veľkých rozmerov a hmotností. Fasáda TP 52 je tradicný systém fasády, známy tiež ako systém Stick. Upevnenie skla na nosné profily sa uskutočňuje priskrutkovaním prítlačnej hliníkovej lišty z vonkajšej strany k prvku z tvrdeného plastu zabudovaným na tento účel na stĺpiky a priečniky. Sklo je tak týmto profilom, ktorý disponuje gumovými rozperami, aby sa zabránilo kontaktu sklo-kov, upevnené zo všetkých štyroch strán. Prítlačná lišta a skrutky zostávajú ukryté pod súvislou vonkajšou krycou lištou.
Maximálna veľkosť prerušenia tepelného mostu 30 mm, spolu s vysokou kapacitou zasklenia až 50 mm a možnosťou zasklievania sklami veľkej hrúbky a energeticky úspornými sklami dávajú tejto novej sérii systému fasád vynikajúce tepelné a akustické vlastnosti. Vonkajšia viditeľná časť je rovnakej veľkosti ako vnútorná časť – 52 mm.