Produkty > Fasádne systémy > Fasáda TPV 52

Fasáda TPV 52

Alebo nám zavolajte na 0905 205 757

Alebo nám zavolajte
na 0905 205 757

Fasádny systém, ktorý sa skladá zo širokého sortimentu stĺpikov a priečnikov ponúkajúc riešenia pre rôzne estetické a konštrukčné požiadavky architektonických projektov, prostredníctvom integrovaných riešení.

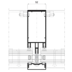
Fasáda TPV 52 je hybridný systém, ktorý vychádza z kombinácie TP 52 a SG 52. Používa sa spôsob montáže vo vertikálnom smere: prítlačná hliníková lišta-vonkajšia krycia lišta, zvýrazňujúc profily z vonkajšej strany v tomto smere. Upevnenie skla sa realizuje na jeho hranách pomocou spon a U-profilu vo horizontálnom smere.

Maximálne prerušenie tepelného mostu 30 mm, spolu s vysokou kapacitou zasklenia až 44 mm a možnosť zasklenia sklami veľkej hrúbky a energeticky úspornými sklami dávajú tejto novej sérii systému fasád vynikajúce tepelné a akustické vlastnosti.

Fasádny systém, ktorý sa skladá zo širokého sortimentu stĺpikov a priečnikov ponúkajúc riešenia pre rôzne estetické a konštrukčné požiadavky architektonických projektov, prostredníctvom integrovaných riešení.

Systémová špecifikácia

Profilová hĺbka

Priečnikový profil:

22,5 – 205,5 mm

Krídlový profil:

Stĺpikový profil:

16 – 230 mm

Pohľadová šírka

Priečnikový profil:

52 mm

Krídlový profil:

Stĺpikový profil:

52 mm

Maximálna hmotnosť zasklenia:

450 kg

Hrúbka zasklenia:

6 – 44 mm

Prievzdušnosť (EN 12152):

Trieda AE

Vodotesnosť (EN 12154):

Trieda RE1500

Odolnosť proti vetru (EN 13116):

Vhodný

Súčiniteľ prestupu tepla okna:

Uw = 1,2 W/m 2K * (pri použití dvojskla Ug = 1,0 W/m 2K)

Súčiniteľ prestupu tepla okna:

Uw = 1,0 W/m 2K * (pri použití trojskla Ug = 0,8 W/m 2K)

* Pre rozmer okna 3000 x 3000 mm

Výhody systému Fasáda TPV 52

Dokumenty na stiahnutie

Máte záujem o nezáväznú cenovú ponuku? Potrebujete poradiť?

Využite naše 25-ročné skúsenosti a získajte riešenie presne pre Vás.

Alebo nás kontaktujte priamo:

Peter Danek
Tel: 0905 205 757
E-mail: brunwin@brunwin.sk