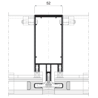
Základné sĺpikové profily fasády SG 52 sú rozmerov od 16 mm do 230 mm, od 22,5 mm do 205,5 mm pre priečniky, a rovnako ako doplnkové príslušenstvo sú kompatibilné pre všetky fasády CORTIZO. Kompletná sada týchto profilov a ich mechanických spojov dovoľuje realizáciu všetkých typov fasád (vertikálne, šikmé, s pravým uhlom 90º, polygonálne), a riešení pri zasklievaní sklami veľkých rozmerov a hmotností. Fasáda TP 52 je tradicný systém fasády, známy tiež ako systém Stick. Upevnenie skla k nosným profilom sa uskutočňuje pomocou spon. Tento systém vyžaduje umiestnenie vložky do komory skla (profil U). Spôsob montáže pomocou kombinácie spon a U profilu umožňuje upevnenie skla na štyroch stranách.
Maximálna veľkosť prerušenia tepelného mostu 30 mm, spolu s vysokou kapacitou zasklenia až 44 mm a možnosťou zasklievania sklami veľkej hrúbky a energeticky úspornými sklami dávajú tejto novej sérii systému fasád vynikajúce tepelné a akustické vlastnosti. Z vonkajšieho pohľadu na systém je vidieť len sklo (bez profilov).